Lakás eladó

Budakalász, Kőbányai út
74.900.000 Ft
€ 191.467
3 szoba 3 szoba
55 nm 55 nm
1 fürdő 1 fürdő

Lakás eladó

Budakalász, Kőbányai út

Leírás

BUDAKALÁSZON ELADÓ EGY ÚJ ÉPÍTÉSŰ, KERTKAPCSOLATOS, ELSŐ EMELETI LAKÁS!

KÖRNYÉK:
Budakalász központjában, de mégis csendes, nyugodt környezetben helyezkedik el, ahonnan a HÉV megálló könnyen, csupán 650 méternyi, 8 perces sétával közelíthető meg. Szintén pár perces sétával elérhető számos kisbolt és pékség is, vagy akár az egészségház és gyógyszertár, melyek 6 percre találhatóak gyalog. A Patakpart Általános Iskola 7 perc sétatávra, 500 méterre, míg a Nyitnikék Óvoda 12 percre és 800 méterre helyezkedik el. Ezen felül egyszerűen elérhető a Napvirág Idősek Otthona is, ami szintén csak 600 méterre és 9 perc sétára található.

JELLEMZŐI:
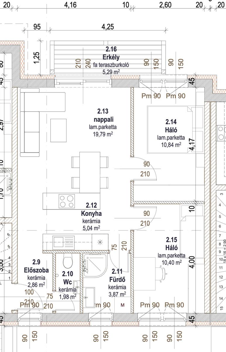
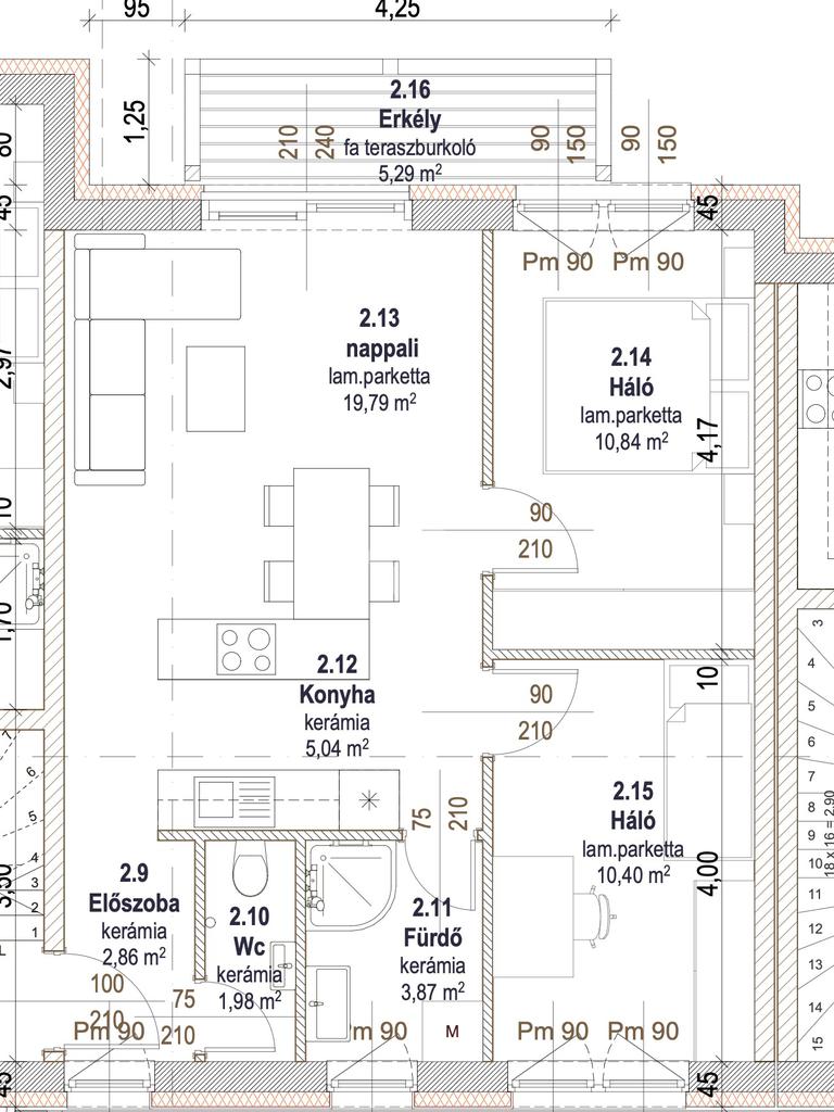
-Az alapterülete 54,79 nm. (amerikai konyhás nappali + 2 hálószoba)
-Plusz egy körbekerített saját kb. 20 nm-es kertrész.
-A lakás 2026 első negyedévében, kulcsra készen kerül átadásra.
-Az épület 30-as POROTHERM téglából épült, 15 cm-es Dryvit szigeteléssel.
-A tetőt barna betoncserép fedi.
-A fűtésről egy a lakáshoz tartozó, saját víz-levegő hőszivattyú gondoskodik.
-Minden helyiségben padlófűtés található.
-A nyílászárók 3 rétegű műanyagok, kívülről antracit színűek.
-Az elektromos redőnyök helyei már kiépítésre kerültek.
-A vevő meleg burkolatot és hideg burkolatot 8.000 ft-ig, szabadon választhat.
-A belső nyílászárók 120.000 ft-ig választhatóak.
-A szaniterek is szabadon választhatóak egy bizonyos összegig.
-Több referenciamunkát is tudunk mutatni Budakalászon és környékén, ami az építtető által került kivitelezésre.

FINANSZÍROZÁS:
- Banki finanszírozással is megvásárolható, melyben irodánk ingyenes tanácsadással áll rendelkezésükre! VEVŐINK RÉSZÉRE A KÖZVETÍTÉS DÍJTALAN! A hirdetésben szereplő adatok tájékoztató jellegűek!

Összes mutatása

Tulajdonságok

Ref.:
59427
Állapot:
Új
Emelet:
1
Lift:
Nincs
Fűtés:
Egyéb egyedi (Hőszivattyús fűtés)
Egyéb helyiségek:
Erkély, Kertkapcsolat (20 nm)
Összes mutatása

Energetikai tanúsítvány

Ennél az ingatlannál az energetikai tanúsítvány folyamatban van
Építés éve:
2026

Vegye fel velünk a kapcsolatot

* Ez a mező kötelező
Franchisee
Bermuda Office Kft.
2011 Szentendrei Járás, Pomázi út, 2./D
2011 Szentendrei Járás, Pomázi út, 2./D Budakalász - Pomáz - Üröm
Hétfő-Péntek: 09:00-19:00, Szombat: 09:00-13:00

Munkatársaink


  • Alexa Jakab
    Képviselő

  • Krisztián Pici
    Képviselő

  • Boglárka Ferenci
    Asszisztens

  • Kovács Gergő
    Irodatulajdonos
Franchisee
Bermuda Office Kft.
2011 Szentendrei Járás, Pomázi út, 2./D
Tecnocasa Group Logo

Minden ügynökségnek saját tulajdonosa van és önállóan működik.

árfolyam 23/12/2025
EUR 391.19 HUF

cégünk

Elérhetőségeink

2025 Gruppo T.F.M. Szolgáltató Zrt. - P. IVA 27421275-2-42 - 1068 Budapest, Király utca 102.. Minden ügynökségnek saját tulajdonosa van és önállóan működik.

Adatvédelmi irányelvek | Cookies tájékoztató