Ház eladó

Budakalász, Szentlászló utca
210.000.000 Ft
€ 574.005
3 szoba 3 szoba
120 nm 120 nm
1 fürdő 1 fürdő

Ház eladó

Budakalász, Szentlászló utca

Leírás

BUDAKALÁSZON, SZENT ISTVÁN-TELEPEN ELADÓ EGY ÖNÁLLÓ CSALÁDI HÁZ!

Telek mérete: 765 nm

A KÖRNYÉK:

Budakalász kedvelt részén Szent István-telepen helyezkedik el egy saroktelken, csupán 12 perces sétára a HÉV megállótól. A kiváló elhelyezkedés könnyen megközelíthetővé teszi a város iskoláit, óvodáit, illetve üzleteit egyaránt, mint például a Szentistvántelepi Általános Iskola, ami 7 perc és a Szent István-telepi óvoda, ami 8 perc gyalog.


A HÁZ JELLEMZŐI:

-A ház bővíthető, illetve lehetőség van még egy szoba kialakítására szükség esetén.
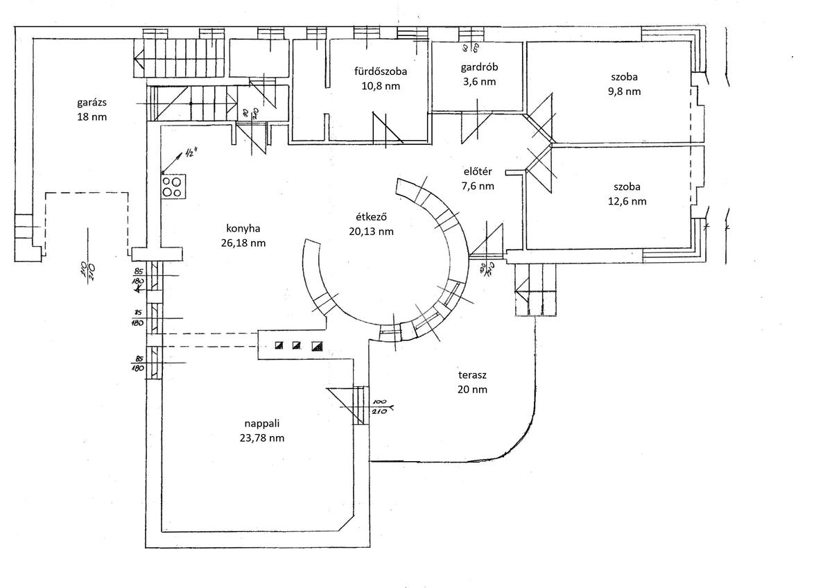
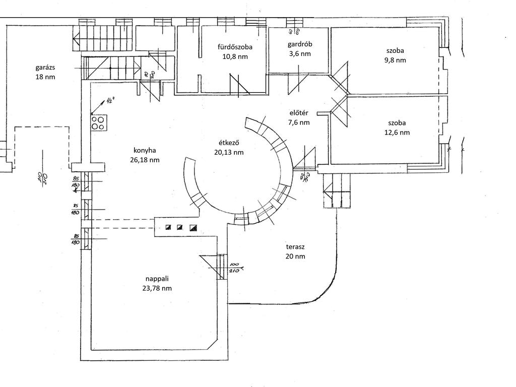
-A ház hasznos alapterülete: 120 nm.
-Plusz egy 18 nm-es garázs.
-Plusz egy 50 nm-es pince.
-Plusz egy 20 nm-es terasz.
-2003-ban épült, 30-as Porotherm téglából, a ház teljes falfelületét faragott kő borítja.
-10 cm-es Dryvit szigetelést kapott.
-A födém borovi fából készült, míg a garázsé vasbetonból.
-A tető cseréppel fedett, üveggyapot hőszigeteléssel.
-A nyílászárók 2 rétegűek, fából készültek, márvány ablakpárkányokkal.
-A fűtésért egy Vallaint gázkazán felel, hőleadás a padlón keresztül, a nappaliban és a két hálószobában peremfűtés lett kiépítve.
-Kétlépcsős fűtésrendszer lett kialakítva.
-A nappaliban található egy kandalló és egy cserépkályha is.
-A villanyvezeték és a fűtés csövezete rézből készült.
-Megtalálható melegvíz tározó is.
-A pincében egy szauna is helyet kapott.
-A kert rendezett, megtalálható benne egy épített kemence, egy 10 méter mély fúrt kút, illetve kerti csap is.
-A telken belül több autó számára is van lehetőség a parkolásra.



FINANSZÍROZÁS:
Tehermentes, banki finanszírozással is megvásárolható, melyben irodánk ingyenes tanácsadással áll rendelkezésükre!
VEVŐINK RÉSZÉRE A KÖZVETÍTÉS DÍJTALAN! A hirdetésben szereplő adatok tájékoztató jellegűek!

Összes mutatása

Tulajdonságok

Ref.:
60070
Állapot:
Lift:
Nincs
Fűtés:
Házközponti (Gáz, Padlófűtés, Egyéb, Kazán)
Egyéb helyiségek:
étkezo, pince, kamra, Terasz
Építőanyag:
Tégla
Összes mutatása

Energetikai tanúsítvány

Ennél az ingatlannál az energetikai tanúsítvány folyamatban van
Építés éve:
2003

Vegye fel velünk a kapcsolatot

* Ez a mező kötelező
Franchisee
Bermuda Office Kft.
2011 Szentendrei Járás, Pomázi út, 2./D
2011 Szentendrei Járás, Pomázi út, 2./D Budakalász - Pomáz - Üröm
Hétfő-Péntek: 09:00-19:00, Szombat: 09:00-13:00

Munkatársaink


  • Alexa Jakab
    Képviselő

  • Krisztián Pici
    Képviselő

  • Boglárka Ferenci
    Asszisztens

  • Kovács Gergő
    Irodatulajdonos
Franchisee
Bermuda Office Kft.
2011 Szentendrei Járás, Pomázi út, 2./D
Tecnocasa Group Logo

Minden ügynökségnek saját tulajdonosa van és önállóan működik.

árfolyam 23/04/2026
EUR 365.85 HUF

cégünk

Elérhetőségeink

2026 Gruppo T.F.M. Szolgáltató Zrt. - P. IVA 27421275-2-42 - 1068 Budapest, Király utca 102.. Minden ügynökségnek saját tulajdonosa van és önállóan működik.

Adatvédelmi irányelvek | Cookies tájékoztató